全國咨詢熱線: 13915908578
除污儲運系列 刮泥撇渣系列 攪拌曝氣系列 除砂潷水系列 截流疏通系列 加藥氣浮系列 生活污水處理
公司動態 行業資訊 產品百科
市政環保 制漿造紙 化纖槳粕 印染化工 食品養殖 生物制藥 其他行業
正在被搜索: 除污儲運系列 刮泥撇渣系列 攪拌曝氣系列
全國服務熱線
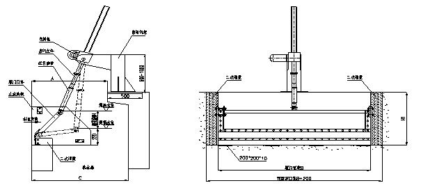
常見用途: 調節堰門是調節流量和水位的理想設備,一般用在沉淀池、沉砂池或配水井出口處,與啟閉機配套使用。 調節堰門工作與閘門相反,均為向下開啟,門體提至最高處,則孔
13915908578
南京格林蘭環保設備有限公司
版權所有備案號: 蘇ICP備18070380號-1
全國服務熱線:13915908578公司地址:南京市六合區雄州開發區雨花路8號
郵箱:lanhaiep@163.com
技術支持:南京宏企網站(15951926643)網站地圖 XML地圖
格林蘭環境
電話
在線留言
二維碼
返回頂部