
常見用途:
廢水生化處理裝置利用自然界中存在的各種微生物,將污水中有機物分解和向無機物轉化,達到凈化水質的目的。
其設備主要按生物處理法中的活性污泥法、厭氧生物處理法、生物膜法的原理設計成包括預處理在內的一體化裝
置。適用于中小型工業廢水、城市生活污水處理廠、站。
工藝流程:

工藝說明:
WSZ 設備主要是對生活污水和與之類似的醫療有機污水處理,其主要處理手段是采用目前較為成熟的生化處理技術——接觸氧化法,水質參數按一般生活污水水質設計計算,進水 BOD5按200mg/l 計。
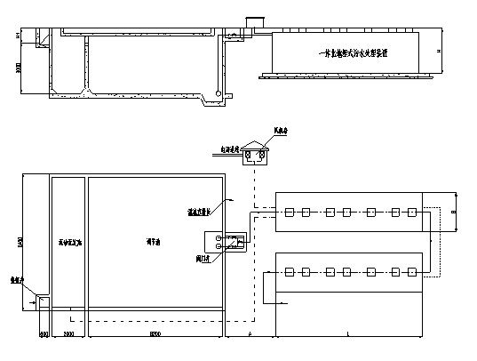
1厭氧池:該設備為球形填料厭氧消化池。污水在厭氧池的上升流速為0.6-0.7毫米/秒,沉淀下來的污泥用空氣提
至污泥池。
2接觸氧化池:厭氧后的水自流至接觸池進行生化處理,接觸池分為1-3級,總停留時間為6小時以上,加強型設備
接觸氧化時間可達8小時,填料為新穎半軟性填料,易結膜,不堵塞,填料比表面積為160m2/m3,接觸池氣水比在
12:1左右。
3沉淀池:生化后的污水流到沉淀池。沉淀池為豎流式運行,上升流速為0.3-0.4毫米/秒,排泥采用管道排污泵提
至污泥池。
4消毒池:消毒池按規范“TJ14-74”標準為30分鐘,若是醫院污水,消毒池可增加停留時間至1-1.5小時。采用固
體氯片接觸溶解的消毒方式,消毒裝置能根據出水量的大小不斷改變加藥量,達到多出水多加藥少出水少加藥的
目的。需要其它消毒裝置可另行配制。
5污泥池:沉淀池的所有污泥均用泵提至污泥池內進行好氧消化,污泥池的上清液流至接觸氧化池內進行再處理,
消化后剩余污泥很少,一般半年清理一次,清理方法可用吸糞車從污泥池的檢查孔伸入污泥池底部進行抽吸后外
運即可。
6風機房:風機房設在整機內。風機采用二臺羅茨風機,自動交替運行,單臺風機運行壽命10000小時左右。
技術參數:
說明:1、當進水 BOD5≤200mg/l,則出水 BOD5≤30mg/l
2、本廠有關技術參數修正,不另行通知用戶
3、30T/H 以上資料另行提供。
平面布置:

系統流程:
結構特點:
WSZ 設備因為埋地設置,維護與保養較為困難,因此在設計中該設備就考慮了它的免維護性,整個設備結構合理可靠,同時也考慮到即使發生一些故障,也可通過設備的各檢查孔進入設備內。
設備所有設施均設置在若干個箱體內,箱體采用 A3鋼板制作,各箱體用無縫鋼管聯接,設備內外均采用化工部推廣產品氯磺化聚乙烯防腐涂料,設備一般涂刷該涂料8道:2道底漆6道道面漆。
配套水泵:
所配套的水泵是用于把污水從調節池內提升到設備內,水泵采用國內最優質潛污泵或國外進口潛污泵。該種水泵排污能力強,無堵塞,能有效地通過直徑30毫米的固體顆粒,該水泵的撕裂機構能夠把長纖狀物質撕裂。無需在水泵上加濾網,水泵可安全運行8000小時以上。
水泵配有電器保護開關、浮球開關、自動耦合裝置。設備配套水泵采用兩臺,其中一臺備用。
安裝調試:
1、安裝:本設備有兩種安裝形式,一是安裝在地坪以上,二是安裝在地坪以下。根據安裝圖與基礎圖,設備混凝土底板大小規格與平面安裝圖相同(基礎)。要求基礎平均承壓5t/m2以上,基礎必須水平,如設備安裝在地坪下,
基礎地坪相對標高與設備高度相同,四周挖掘寬度必須離基礎邊線500mm 以上,以便安裝管道。
根據安裝圖就位,用吊車吊入設備,箱體的位置,方向不能放錯,互相間距必須準確,裝好設備聯接管道。
安裝完畢后必須把設備存滿水,試水各管口必須不滲漏,把兩只二沉池潛水槽調整在同一水平線上,進一步檢查
確認無不妥后,即可用土填入設備四周間隙中,并整平地面。把電控柜控制線與設備接通,電控柜與電源接通,接線時注意風機、水泵電機的轉向,必須與所指方向相同。
注意事項:
設備安裝之后,必須保證下雨不積水,設備的排出水管道必須在相對地坪-0.6m 以下;設備上方不得壓有重物,不得有大型車輛通過;設備一般不得抽空內部污水,以防上下水把設備浮起。
2、調試:污水泵按額定流量把污水抽入設備內,啟動風機進行曝氣,每天觀察接觸池內填料情況,如填料上長出
橙黃或橙黑色的一層膜即已培養好生物膜,這一過程一般要7-15天,如是工業有機污水,最好先用生活污水培養好生物膜后,再逐漸引入工業污水進行生物膜訓化。
3、設備維護保養:WSZ 設備必須建立一套定期保養制度。主要易損部件風機與水泵,風機轉向不能搞反。如進入污水,必須清理,更換機油后方能使用。風機啟動前必須注意空氣閘門是否打開,風機必須每運行10000小時保養
一次,水泵必須每運行5000-8000小時保養一次。
使用要求:
1 調節池里的潛水提升泵由自耦裝置耦合安裝,有質量和其他問題時,可以通過自耦裝置用鐵鏈拉出后進行處理。
2 污泥池內的污泥要定期清理。一般半年清理一次
3 風機房通風且防水,所以人孔蓋要隨手關閉。風機每半年至一年要更換潤滑油。
4 其余電機每使用5000小時后要檢查一次。
設備選用:
在選用 WSZ 設備以前,首先必須搞清污水的性質,進水水質,水量與要求達到的排放標準。
調節池由用戶提供或構筑,一般為混凝土池體,調節池的容量必須根據排水周期、生活工藝等因素來確定,一般調節池的容量為處理量的6-10倍。在設計中設備可埋入地表以下,也可放置在地表以上,也可采用半埋式。設備各箱體間的管道由我單位提供,運行前只需連好箱體間的管道與進出水管,接好電纜即可運行。
該設備如用在寒冷地區可把設備檢查孔加高,把設備埋設在凍土層以下,設備即可正常運行。在南方地區設備也可放置室外地坪上,不需蓋房。
該設備可按標準方式布置,如有特殊情況,三只箱體可根據地形進行布置。